あなたと家つくり
   

 
南立面図 決定図
コメント:建主様と設計者のこれまでの葛藤の中から生み出された最終段階の住空間です。
御爺ちゃんの思い、奥さんの思い、子どもたちの思い、家族のみんなの思いを最終的にはご主人が設計者に伝えて、形づくってきたものです。
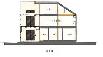
東立面図 断面図
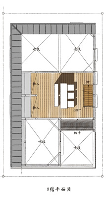
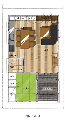
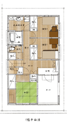
1階平面図 2階平面図 3階平面図
STEP3へもどる

 

   
TOPページへ copyright O.D.A.